新築テナントビル「日暮里ツリー 谷中御殿坂」

テナント募集

                                                      2026年5月完成予定

テナント募集のお知らせ


寺町と谷中の文化が交わる御殿坂通りに、
新築テナントビル「日暮里ツリー 谷中御殿坂」が完成します。

この度弊社が手掛ける「日暮里ツリー谷中御殿坂」は、
御殿坂通りの街並みに溶け込む落ち着いた錆茶色の外観が特徴の木造3階建ての商業施設です。
「日暮里」駅から徒歩わずか 1分という抜群のアクセス。
谷中銀座や美術館、寺院が点在する情緒豊かなエリアにあり、
そのロケーションは観光客や地域住民に愛され続けています。

【おすすめポイント】
・谷中・御殿坂の歴史ある街並みに調和するデザイン
・駅近で集客力抜群
・美術館や寺院が近く、文化的な雰囲気を活かした店舗展開に最適
・屋上からは浅草方面のスカイツリーや隅田川花火大会も望めます
・御殿坂通りの並びには スターバックスが今春オープン予定、話題性と集客力がさらにアップ


物件の詳細や内覧については、担当までお問い合わせください。
東京都杉並区阿佐谷南3-32-1
株式会社シンクタウン
TEL 03-3391-2711
E-mail info@thinktown.co.jp

   

■物件概要

【物件概要】
所在地:東京都荒川区西日暮里3丁目2番2号
交通:JR山手線「日暮里」駅 徒歩1分
用途地域:近隣商業地域
建ぺい率:80%/容積率:300%
構造:木造3階建
外観:錆茶色の落ち着いたデザイン

【募集区画】
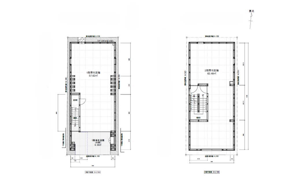
1階店舗:57.62㎡(専用テラス8.58㎡)
2階店舗:62.48㎡
3階シェアオフィス:63.03㎡+PH8.34㎡+屋上49.73㎡

※詳細条件(賃料・共益費・保証金など)はお問い合わせください。







資料請求や詳しいご説明を希望される場合は、
お気軽にお問い合わせください。

Contact