井の頭二丁目 見学会のご案内

見学会のお知らせ
この度、井の頭二丁目に新築分譲住宅が完成いたしました。
販売会に先駆け、見学会を行なう運びとなりましたので、是非この機会に、
この家のデザインや性能を、直にご覧いただき、心地よさやぬくもりを肌で感じていただけると幸いです。
皆様のお越しを心よりお待ちしております。
「井の頭での暮らし」
この計画地は、井の頭の自然環境が今でも多く残る玉川上水のほとりにあります。
夏は緑が生い茂り、木々の揺らぎが美しく目に入ってきます。
冬は木々が落葉し、暖かい陽と共に鳥のさえずりが聞こえ、のどかな時間が過ぎていきます。
家だけを考えるのではなく、自然や地域の中に存在するものとして家を考え、一過性のものではなく、後世に続き、受け継がれていくことを前提に考えています。
自然との共生感を大切に、『井の頭の自然の中に家を建てさせてもらう』という謙虚さを持ち、自然と繋がるようにこの建物は建てられています。![]()
![]()
![]()
■開催期間
【完全予約制】
10/24(金)・25(土)・26(日)・31(金)
11/1(土)・2(日)・3(月祝)
ご予約時間帯
10:00~
11:00~
13:00~
14:00~
15:00~
16:00~
17:00~
■開催場所
東京都三鷹市井の頭二丁目11-26
Google Maps→
※お車でお越しの場合は、お近くのコインパーキングのご利用をお願いいたします。
■お問い合わせ
ご興味のある方は、こちらからお問い合わせください。
ご質問やご不明な点がございましたら、
info@thinktown.co.jp
よりお問い合わせくださいませ。
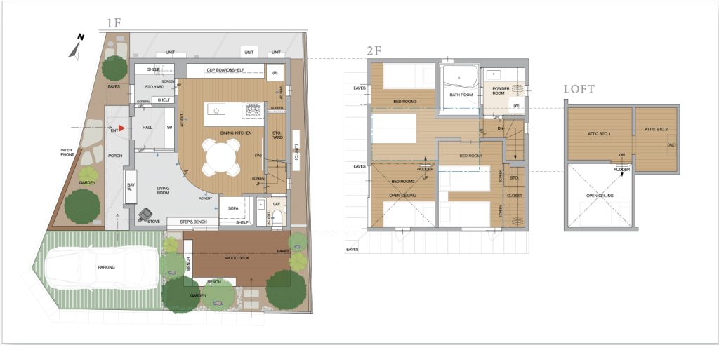
■物件概要
住所:東京都三鷹市井の頭二丁目11番26号
用途地域:第一種低層住居専用地域
建蔽率:40%
容積率:80%
権利:所有権
敷地面積:109.55㎡
建物面積:86.94㎡(ロフト、テラス含まず)
ロフト9.10㎡、テラス約10.00㎡
構造:木造ガルバリウム鋼板葺き2階建
建築確認番号:第JAIC2024W04041号
建築確認年月日:令和7年1月10日
築年月日:令和7年9月末日
販売価格:未定



